$15m industrial facility redevelopment planned in Perth’s east, with subcontractor and supplier opportunities during major plant upgrade

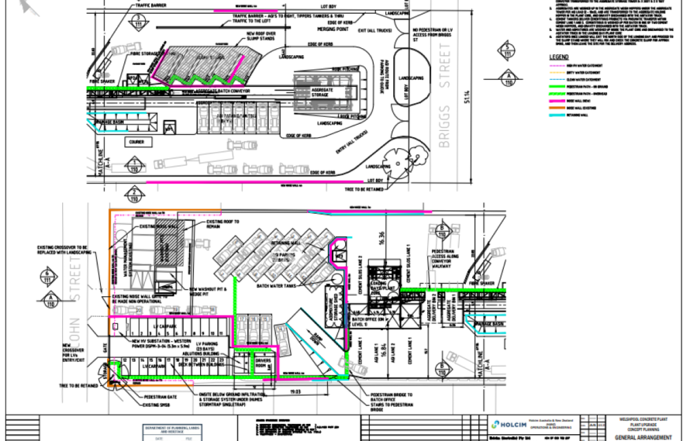
Concept image of Holcim’s proposed Carlisle concrete batching plant redevelopment featuring silos, aggregate tower and upgraded infrastructure.

A plan has been revealed for the $15 million redevelopment of an industrial facility in Perth’s east, with supplier and subco...


To read the rest of this article, please log in using the form below, or sign up for a free 21-day trial and explore our full range of insights.

Log In