$51m education project approved in Western Sydney featuring new sports and aquatic facilities, gym, and major infrastructure upgrades

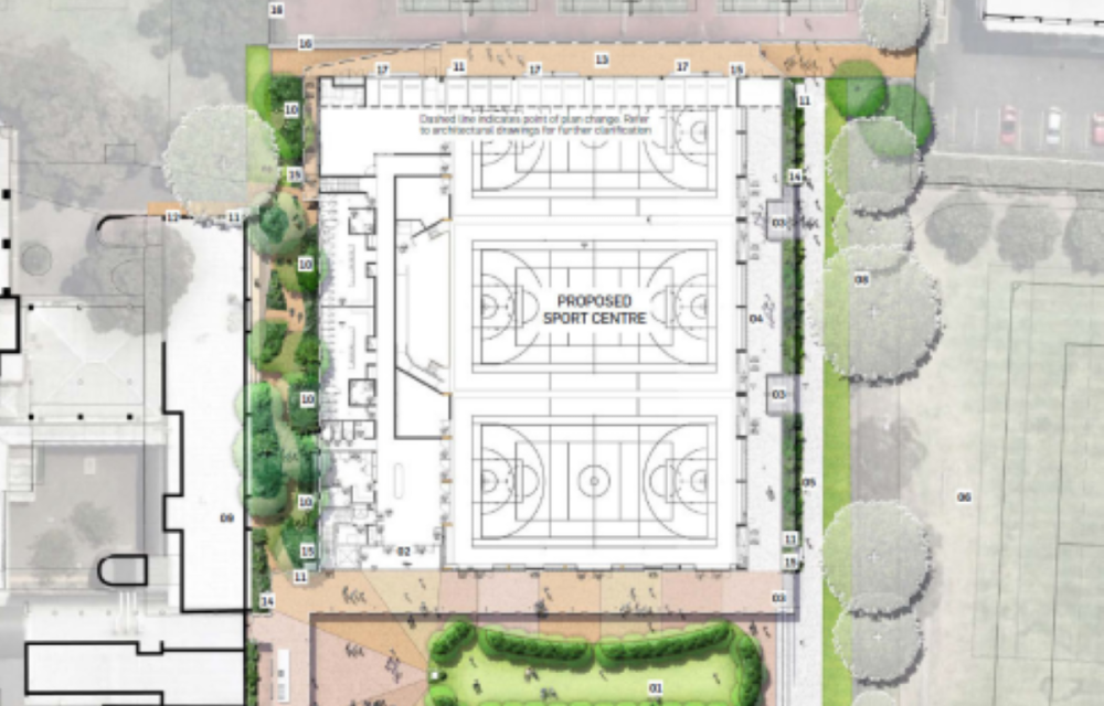
Plan of proposed sports and aquatic centre at Santa Sabina College Senior Campus in Western Sydney following $51m redevelopment approval

Planning approval has been granted for the construction of a $51 million addition to an educational facility in Western Sydne...


To read the rest of this article, please log in using the form below, or sign up for a free 21-day trial and explore our full range of insights.

Log In